Homes | Alamo Lite 28724T
Alamo Lite 28724T Continue
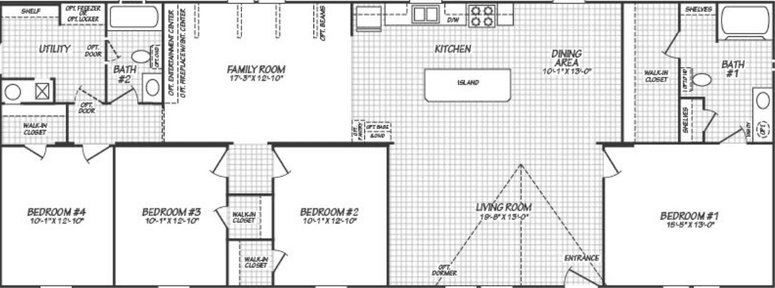
4 bedrooms
2 full bathrooms
1,920 sq. ft.
26' 8" x 72'
Alamo Lite Multi-Section standard features
Construction
Full I-Beam Chassis with Outriggers Detachable Hitch 8' Flat Ceiling 2 x 6 #2 Floor Joists Installed 19.2" on Center 14 & 28 2 x 8 #2 Floor Joists Installed 19.2" on Center 16 & 32 5/8 x 4 x 8 Tongue & Groove OSB Floor Decking 2 x 4 Exterior Walls Installed 16" on Center 20lb Roof Load
Full I-Beam Chassis with Outriggers Detachable Hitch 8' Flat Ceiling 2 x 6 #2 Floor Joists Installed 19.2" on Center 14 & 28
2 x 8 #2 Floor Joists Installed 19.2" on Center 16 & 32 5/8 x 4 x 8 Tongue & Groove OSB Floor Decking MHC New Braunfels
Affordable homes at your fingertips
Get started with MHC New Braunfels
Find, design, and order your next home in a few clicks.
Sign up Property map Enter your address or APN to check if this home fits on your property
Full I-Beam Chassis with Outriggers Detachable Hitch 8' Flat Ceiling 2 x 6 #2 Floor Joists Installed 19.2" on Center 14 & 28 2 x 8 #2 Floor Joists Installed 19.2" on Center 16 & 32 5/8 x 4 x 8 Tongue & Groove OSB Floor Decking 2 x 4 Exterior Walls Installed 16" on Center 20lb Roof Load Blank Front Door with Storm Door Blank Rear Door Metal Windows Exterior Lights All Doors Deadbolt Locksets on all Entry Doors Vinyl Shutters Front Door Side & Hitch End (per plan) Shingled Roof Vinyl Siding with Foam Core Backer Cottage Rear
Full I-Beam Chassis with Outriggers Detachable Hitch 8' Flat Ceiling 2 x 6 #2 Floor Joists Installed 19.2" on Center 14 & 28 2 x 8 #2 Floor Joists Installed 19.2" on Center 16 & 32
4 bedrooms
2 full bathrooms
1,920 sq. ft.
26' 8" x 72'
2 x 4 Exterior Walls Installed 16" on Center
20lb Roof Load Kitchen
Nationally Serviced Whirlpool Appliances – Black 18 CF Refrigerator Dishwasher Electric Range & Black Range Hood Durable Stainless Steel Sink Factory Select Countertops 5 Piece Cabinet Doors with Flat Panel Insert Soft Close Kitchen Overhead Cabinet Doors 2 Shelves over Refrigerator Bead Board Accent above Kitchen Overhead Cabinets USB Pop Up Charger in Kitchen (per print) Farm Sink
Nationally Serviced Whirlpool Appliances – Black 18 CF Refrigerator Dishwasher Electric Range & Black Range Hood Durable Stainless Steel Sink Factory Select Countertops
5 Piece Cabinet Doors with Flat Panel Insert Soft Close Kitchen Overhead Cabinet Doors 2 Shelves over Refrigerator Bead Board Accent above Kitchen Overhead Cabinets USB Pop Up Charger in Kitchen (per print) Farm Sink Exterior
Blank Front Door with Storm Door Blank Rear Door Metal Windows Exterior Lights All Doors Deadbolt Locksets on all Entry Doors Vinyl Shutters Front Door Side & Hitch End (per plan) Shingled Roof Vinyl Siding with Foam Core Backer Cottage Rear
Blank Front Door with Storm Door Blank Rear Door Metal Windows Exterior Lights All Doors Deadbolt Locksets on all Entry Doors
Vinyl Shutters Front Door Side & Hitch End (per plan) Shingled Roof Vinyl Siding with Foam Core Backer Cottage Rear Bedroom
Spacious Closets with Wire Shelves LED Recessed Ceiling Light Attractive Nickel Door Hardware
Spacious Closets with Wire Shelves LED Recessed Ceiling Light
Attractive Nickel Door Hardware Interior
LED Lights T/O Durable 3/8" Vinyl Covered Sheetrock Accent Walls (per plan) Textured Ceiling Finish Residential White Half Arch Interior Doors on Heavy-Duty Hinges 1" Blinds Installed Throughout (Except Baths) Durable Beau Floor Vinyl in Entry, Kitchen, Baths, Dining Room, Utility Room & Closets (per plan) 5 x 14" Oversized Air Ducts in Floor Plush Carpet over 3/8" Rebond Carpet Pad & Tack Strip
LED Lights T/O Durable 3/8" Vinyl Covered Sheetrock Accent Walls (per plan) Textured Ceiling Finish Residential White Half Arch Interior Doors on Heavy-Duty Hinges
1" Blinds Installed Throughout (Except Baths) Durable Beau Floor Vinyl in Entry, Kitchen, Baths, Dining Room, Utility Room & Closets (per plan) 5 x 14" Oversized Air Ducts in Floor Plush Carpet over 3/8" Rebond Carpet Pad & Tack Strip Mechanical
30 Gallon Electric Water Heater R-11 Fiberglass Blanket Floor Insulation R-11 Fiberglass Batt Exterior Wall Insulation R-14 Blown Cellulose Ceiling Insulation Electric Down-flow Furnace 200 AMP Interior Panel Box 3/4" Pex Water Supply Lines with 1/2" Risers to all Fixtures Master Water Shut-Off Valve Factory Installed Air Conditioner with Quick Disconnect 5 Wire Thermostat Plumbed, Wired & Vented for Washer & Dryer Wire Shelf over Washer & Dryer Area (per plan) Living Room Ceiling Fan
30 Gallon Electric Water Heater R-11 Fiberglass Blanket Floor Insulation R-11 Fiberglass Batt Exterior Wall Insulation R-14 Blown Cellulose Ceiling Insulation Electric Down-flow Furnace 200 AMP Interior Panel Box 3/4" Pex Water Supply Lines with 1/2" Risers to all Fixtures
Master Water Shut-Off Valve Factory Installed Air Conditioner with Quick Disconnect 5 Wire Thermostat Plumbed, Wired & Vented for Washer & Dryer Wire Shelf over Washer & Dryer Area (per plan) Living Room Ceiling Fan Bathroom
Chrome Vanity Faucets Residential Ceramic Round Bowl Commodes One Piece Tub Surrounds Exhaust Fans Mirror Trim
5/8 x 4 x 8 Tongue & Groove OSB Floor Decking
2 x 4 Exterior Walls Installed 16" on Center
20lb Roof Load
Blank Front Door with Storm Door
Blank Rear Door Metal Windows Exterior Lights All Doors Deadbolt Locksets on all Entry Doors Vinyl Shutters Front Door Side & Hitch End (per plan) Shingled Roof Vinyl Siding with Foam Core Backer Cottage Rear Nationally Serviced Whirlpool Appliances – Black 18 CF Refrigerator Dishwasher Electric Range & Black Range Hood Durable Stainless Steel Sink Factory Select Countertops 5 Piece Cabinet Doors with Flat Panel Insert Soft Close Kitchen Overhead Cabinet Doors 2 Shelves over Refrigerator Bead Board Accent above Kitchen Overhead Cabinets USB Pop Up Charger in Kitchen (per print) Farm Sink
Nationally Serviced Whirlpool Appliances – Black 18 CF Refrigerator Dishwasher Electric Range & Black Range Hood Durable Stainless Steel Sink Factory Select Countertops
5 Piece Cabinet Doors with Flat Panel Insert Soft Close Kitchen Overhead Cabinet Doors 2 Shelves over Refrigerator Bead Board Accent above Kitchen Overhead Cabinets USB Pop Up Charger in Kitchen (per print) Farm Sink
Chrome Vanity Faucets Residential Ceramic Round Bowl Commodes One Piece Tub Surrounds Exhaust Fans Mirror Trim
Spacious Closets with Wire Shelves LED Recessed Ceiling Light Attractive Nickel Door Hardware LED Lights T/O Durable 3/8" Vinyl Covered Sheetrock Accent Walls (per plan) Textured Ceiling Finish Residential White Half Arch Interior Doors on Heavy-Duty Hinges 1" Blinds Installed Throughout (Except Baths) Durable Beau Floor Vinyl in Entry, Kitchen, Baths, Dining Room, Utility Room & Closets (per plan) 5 x 14" Oversized Air Ducts in Floor Plush Carpet over 3/8" Rebond Carpet Pad & Tack Strip
Spacious Closets with Wire Shelves LED Recessed Ceiling Light Attractive Nickel Door Hardware LED Lights T/O Durable 3/8" Vinyl Covered Sheetrock Accent Walls (per plan)
Textured Ceiling Finish Residential White Half Arch Interior Doors on Heavy-Duty Hinges 1" Blinds Installed Throughout (Except Baths) Durable Beau Floor Vinyl in Entry, Kitchen, Baths, Dining Room, Utility Room & Closets (per plan) 5 x 14" Oversized Air Ducts in Floor Plush Carpet over 3/8" Rebond Carpet Pad & Tack Strip
Images of homes are solely for illustrative purposes and should not be relied upon. Images may not accurately represent the actual condition of a home as constructed, and may contain options which are not standard on all homes.
Canyon Lake Multi-Wide 28764T 4 Bed | 2 Bath | 2,027 Sq. Ft. | 26' 8" x 76'
Canyon Lake Multi-Wide 28664T 4 Bed | 2 Bath | 1,760 Sq. Ft. | 26' 8" x 68'
Hidden Shores 32684A 4 Bed | 2 Bath | 2,085 Sq. Ft. | 30' 5" x 60'
Valu Maxx Premier 32684F 4 Bed | 2 Bath | 2,085 Sq. Ft. | 30' 8" x 68'